Floor Plans
Rooms
-
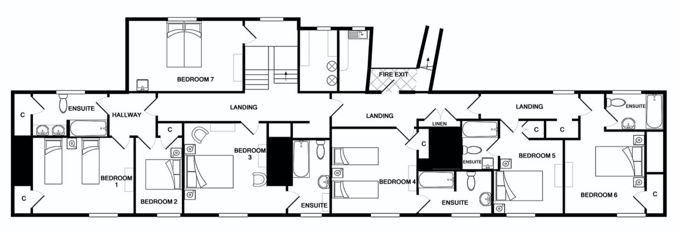
Hurstone: Bedroom 1 - heritage style, beautiful views to wake up to Bedroom 1
View Images1930’s twin beds, use of family bathroom shared with Bedroom 2, south facing views over the valley.
-
Hurstone: The family bathroom used by Bedrooms 1 and 2 Bedroom 2
View ImagesSmall double cast iron bed, use of family bathroom shared with Bedroom 2, south facing views over the valley.
-
Hurstone: Bedroom 3 - A lovely old bed, a glorious view Bedroom 3
View ImagesMahogany double bed, ensuite bathroom with bath and overhead shower, south facing views over the valley
-
Hurstone: A peek into Bedroom 4 Bedroom 4
View ImagesBrass twin beds, ensuite bathroom with bath and overhead shower, hand basin, loo, south facing views over the valley.
-
Hurstone: Bedroom 5 - Sip a cup of tea in bed, admire the views, no need to rush... Bedroom 5
View ImagesDouble bed, ensuite bathroom with bath, hand basin and loo, south facing views over the valley
-
Hurstone : Bedroom 6 - A spacious room with a sense of calm Bedroom 6
View ImagesDouble bed, ensuite bathroom with bath and overhead shower, hand basin, loo, south facing views over the valley.
-
Hurstone: Bedroom 7 - a cosy ambience, original artworks on the walls Bedroom 7
View ImagesZip and link beds (super king or twin), hand basin, this room is at the back of the house and looks out onto the rear garden and the hills beyond. Use of the family bathroom or the shower room on the ground floor.
-
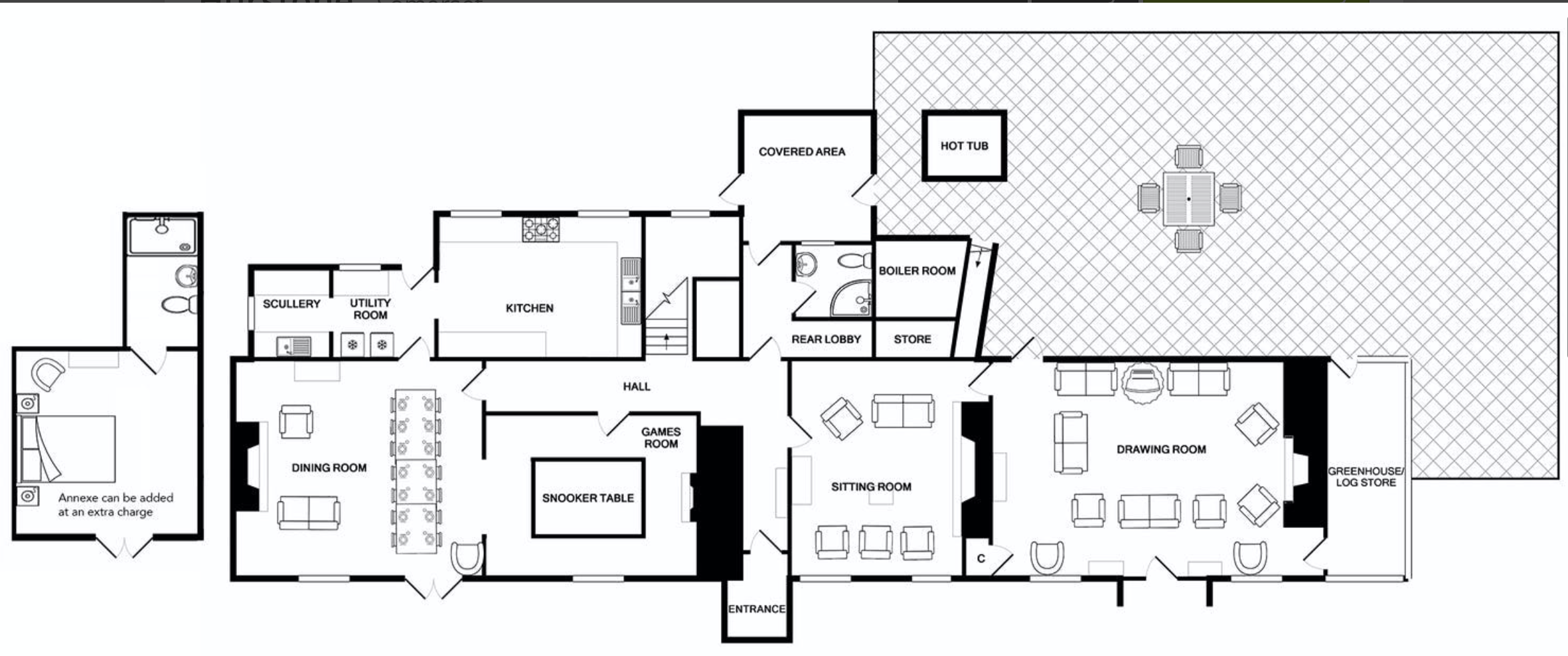
Hurstone: The kitchen is spacious and well equipped Kitchen/Utility
Dual fuel Range cooker (5 burner gas hob with 90cm electric oven ), standard electric oven, 3 under counter fridges, fridge freezer, microwave, 2 dishwashers, washing machine and tumble dryer, coffee filter machine, 4 cafetieres.
-
Hurstone: Gather in the dining room to relax and enjoy big happy feasts Dining Room
Table to seat 14 (16 at a push), additional drop leaf table available on request to seat 4, wood-burner, French doors to terrace, south facing views over the valley.
-
Hurstone: Hours spent contentedly playing snooker and games Games Room
Half size snooker table, south facing views over the valley. NB: the fireplace in this room is not in use.
-
Hurstone: With a piano, games and snooker room for those cosy stay-at-home days Sitting Room
Sofas, wood-burner, piano, south facing views over the valley.
-
Hurstone: Plenty of places to sit comfy in the drawing room Drawing Room
Sofas and chairs, TV with Sky Sports & Movies, DVD player, wood-burner, under floor heating, well stocked games cupboard, Door onto terrace, south facing views over the valley.
-
We don't have an image of this room just yet, sorry. Ground Floor Shower Room
Corner shower, hand basin, loo.
-
Hurstone: The family bathroom used by Bedrooms 1 and 2 Family Bathroom
Bath with overhead shower, hand basin, loo.
-
Hurstone: The self contained annexe is right next to the house Annexe
This is self-contained and is right next to the house. There is a king size double bed and an ensuite wet room. The annexe is fairly access friendly and has in the past been used by guests with restricted mobility.